金物施工図は建築図面のデータを元に図面を起こしていくのですが、どこまでの情報が必要か見極めが大事になります。
お客さんにこう言われたことがあります。

平面や断面は簡単でいい、納まりで詳細書いてくれれば十分。
それはそうなんだけど、建築図コピペする方が楽なんです💦
実例で紹介します。
※このページのCADデータをダウンロードする↓↓↓
省略すべきか ダウンロード
渡り廊下EXP.J断面図を書く
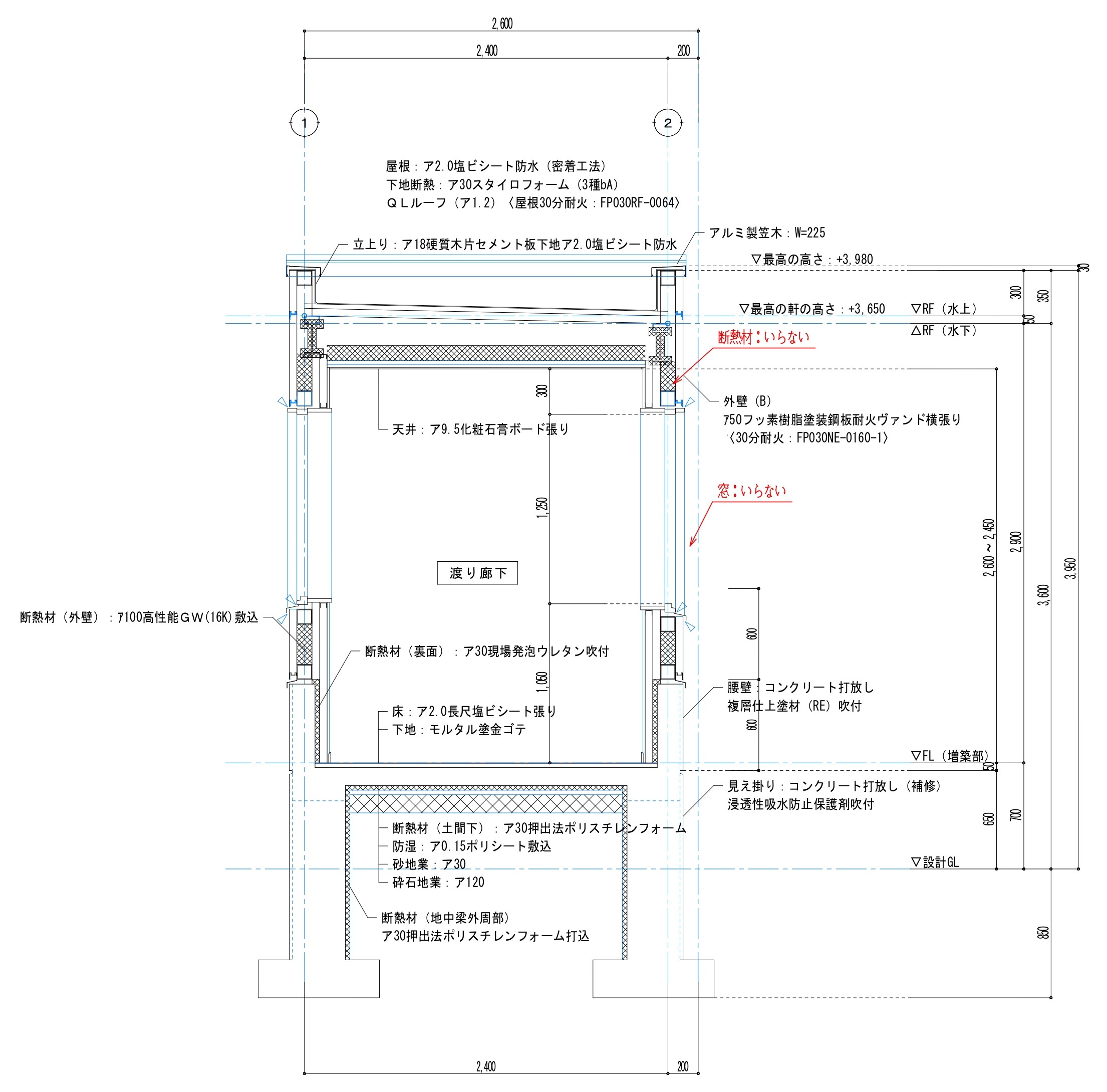
元図
2階渡り廊下の元図はこちらになります。
「いらない」と書いてあるのは
今回書くEXP.Jには直接かかわらない。
という意味です。
このいらない部分を消していきます。
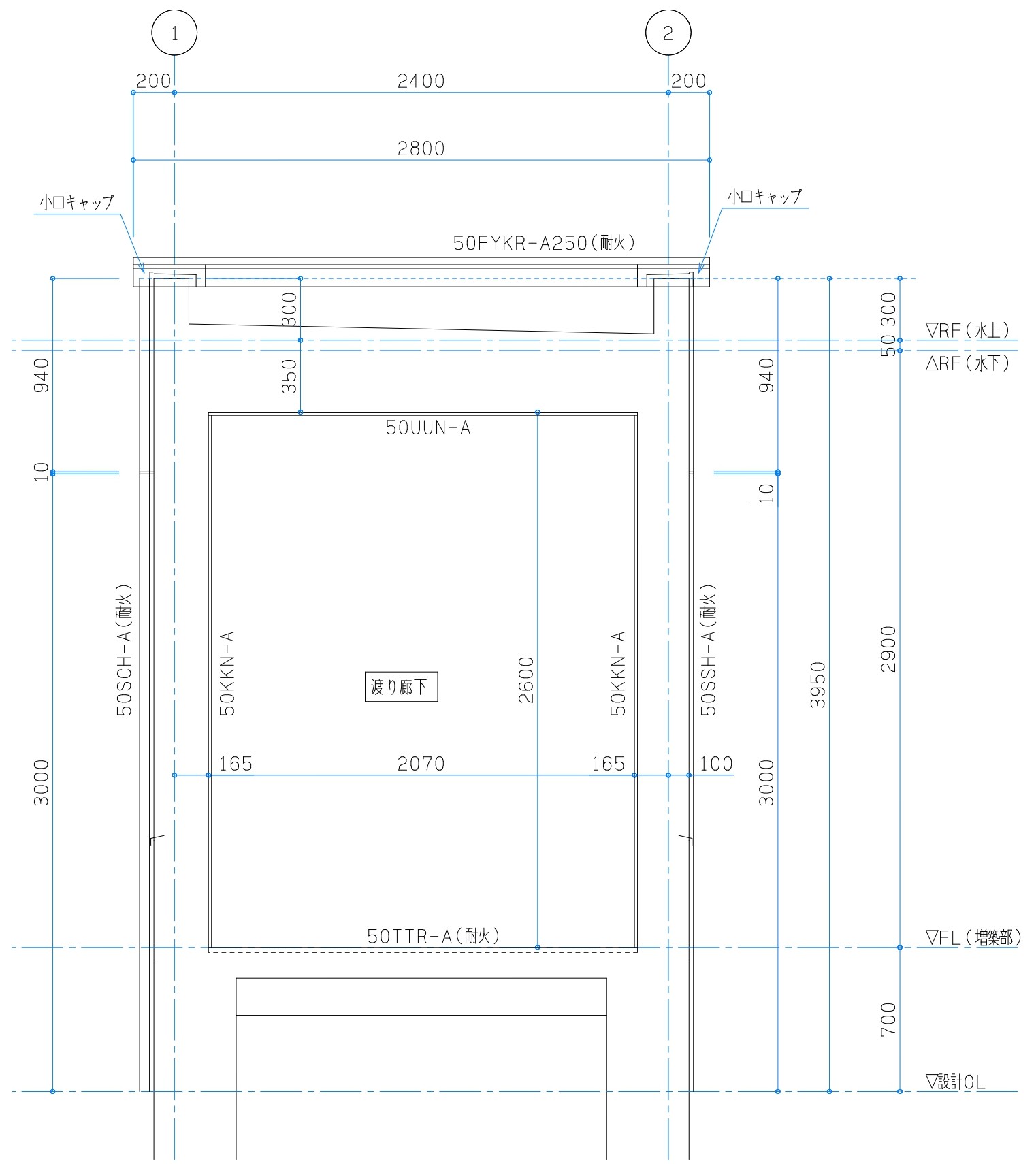
必要な部分だけ残した図
EXP.Jに必要な線を残してすべて消すとこうなります。
スッキリしましたね。
外壁や床、天井などの仕様もEXP.Jの断面図には必要ありません。
それは納まり図に書くからいいのです。
EXP.Jを入れていく
EXP.Jを納まり図通りに書いていきます。
寸法、割付も入れます。
EXP.Jの断面図はこれで完成となります。
もっと簡単でもいい
お客さんによっては「もっと簡単でもいい。」という方もいます。
さらっとし過ぎてる感じもしますが、この方がEXP.Jがわかりやすかったりします。
シンプルですね。
それにEXP.Jを入れていくとこうなります。
確かにわかりやすいかもしれません。
金物施工図はわかりやすいが第一
今回はEXP.Jで解説しましたが、例えば笠木はシンプルに書くことが多いです。
シンプルでいいかは物件にもよります。
省略することのいいこと、しない方がいい場合
●省略していい事
シンプルで金物がわかりやすい
作図に時間がかからない
●省略しない方がいい場合
寸法の間違いがない
断面図そのまま使うのでわかりやすい
まとめ
私は納期がよほど厳しくない時は省略しないで書いていますが、お客さんや現場によってはシンプルでわかりやすい図面を求められるので、お客さんに1度確認した方がいいかもしれません。
何を求められてるか考えて書くのがいいと思います。
※このページに掲載している図面データはダウンロード出来ます。
圧縮ファイル(ZIP)にJWW、DXF、PDFファイルが入っています。
(ページトップにあるダウンロードデータと同じです)
省略すべきか ダウンロード






